In Ground Stair Stringers
Choose the stringer type that matches your install method and landing arrangement.
Products
34
View
Public Catalogue
Available Products
Showing all products in this category.
No products match this search.
Try a broader item number, description, or size term.
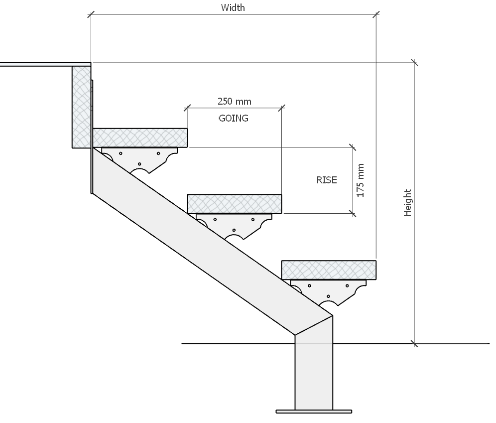
Reference Image
Technical Data
| PRODUCT | HEIGHT (MM) | WIDTH (MM) | UNITS | KG / UNIT |
|---|